施工事例「築50年を超える木造2階建フルリノベーション」
REFORM
Prologue
東京都の郊外エリアで未接道・築50年の木造2階建の中古住宅を購入されたお客様。耐震補強と断熱改修工事を行なってフルリノベーションをすることにしました。
改修前の状況
M様
娘の学区内で一軒家に引っ越そうと、ネットで探していたら、たまたまこの物件を見つけました。
いろんな物件を見ながら、開発された整形の土地に新築した時に予算に合う土地の広さだと、都内では庭も取れず窮屈で日当たりもわるそうだなと思っていたのと、中古住宅の耐震・断熱改修すれば、それが一番エコなんじゃないかと思っていました。
住宅地の真ん中に、旗竿敷地で二方向が川と遊歩道に面したちょっと高台に建つ、駅近としてはかなり希少な立地のこの家をみつけて、運がいいことに、接道が取れてなく再建築不可の物件で格安で購入ができました。
せめて新耐震以降であれば耐震改修費用も抑えられると考えていたのですが、物件購入費が安く済んだので、改修費用に回せば何とかなるかなと考えていたのと、木造改修になれている方と一緒に設計できれば、いろんなアイデアをもらえるかなと、参創ハウテックさんに調査からお願いしました。
設計者の考え
設計補佐:尾崎
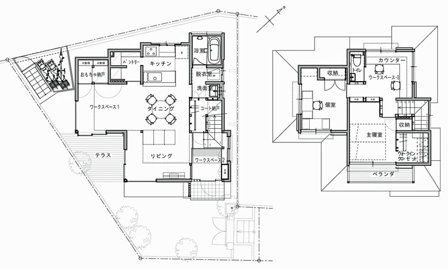
改修工事前の1階はLDK+部屋(8畳)+浴室・洗面・トイレがある間取りでした。今回の改修工事で1階は大きなLDK+浴室・洗面とし、パントリーを追加する計画です。そして性能向上として耐震化と断熱化を行います。
設計補佐:尾崎
間取りを大きく変える改修工事では、柱を抜いたり新しく建てたりします。柱を抜くことで構造強度を落としてしまわないように、しっかりとした構造計画が必要となります。
古い木造住宅の場合、構造図がないケースが多いです。構造図がない場合は、屋根裏や床下に入り構造がどのように構成しているのかを調べるために調査をいたします。
参創ハウテックでは、このようなケースの場合は、一般社団法人住宅医協会と連携して住宅調査を実施します。今回の調査では弊社から3名、住宅医協会3名の建築士が参加し、1日かけて住まいの隅々まで調査しました。
設計補佐:尾崎
調査した結果は「住まいの診断レポート」にまとめて報告します。「住まいの診断レポート」は調査に参加し、改修工事の設計を担当する工藤夕佳さんがまとめました。今回のケースでは100ページを超える内容です。
設計:工藤さん
住宅医協会の住宅調査は、耐久性・耐震性・温熱性・省エネルギー性・バリアフリー性・火災時の安全性の6項目について調査を行い点数化します。工事前と後で性能がどれくらい向上できるかを点数で比較できるので分かりやすいのは良い点です。
また、性能の調査とともに床下・小屋裏の調査も行うので、柱・梁・基礎などの配置や状態も合わせて調査を行うことで、改修計画に必要な情報も合わせて調べます。隅々まで調べているものの、どうしても見えない箇所は残るので、工事着工後に仕上材を撤去してから新たに劣化箇所が見つかるケースは少なくありませんが、出来るだけ最小限に留める助けになっていると思います。
今回は調査結果から、基礎が無筋で建物を支えるのに十分とは言い難い状態であることが分かりました。また、床の傾斜も確認されたため、これ以上傾かないように基礎を補強することも必要と考えました。耐震診断から耐力壁の不足とともに、1階と2階の壁の位置がずれている部分も多いことも分かり、壁配置の整理も必要と考えました。
設計段階
住宅調査を元に設計がはじまりました。M様は建築系のお仕事をしています。間取りやデザイン等は、M様の希望を伺い、工藤さんがまとめていきます。
M様
仕事柄、自分たちの生活を間取りに落とし込むことは慣れていたので、大まかなプランは自分で書いて、工藤さんにお渡しして、家族三人の身の丈に合った生活ができる、性能・金額・耐久性にバランスの取れた家をお願いしました。
中古の住宅のリフォームだったこともあり「新築そっくりさん」のようなリフォームではない、築50年であることを生かしたリフォームにしたいなと漠然と思っていました。
設計補佐:尾崎
設計での色々な打ち合わせをして方針が決まりました。外壁と瓦屋根は既存を残して塗替えを行ないます。基礎は補強します。床の剛性を上げるため、2階の床には合板を取り付け、補強の必要な梁には補強をしていきます。断熱化に関しては国と東京都の補助金がありました。補助内容を考慮しながら断熱内容をまとめました。
設計:工藤さん
M様が希望されたプランニングを基に、耐震補強に必要な壁や柱の位置などを調整しつつ、生活動線や使い勝手などについてもご相談しながらまとめていきました。耐震補強は1.0を超えることは最低限のラインとして補強を計画しました。
基礎は既存基礎に新たな基礎を添える形で行い、梁強度が足りない部分には梁を追加したり、金物も必要箇所には追加しました。耐力壁は内部からの補強のみで、基本的には構造用合板を使用し、面で支える方法としました。
設計:工藤さん
温熱については開口部は一部新しいサッシに交換した部分を除き既存窓に内窓を追加し、内部から補強出来る範囲での性能を検討した結果、等級5はクリアすることができました。断熱材が全くない状態だったので、体感としてもだいぶ変化を感じることができたのではと思います。
M様は空間のイメージを明確にお持ちでしたので、具体的に設計に落とし込む作業はスムーズに進められました。同じ建築系のお仕事でも分野が違うので、デザインの発想や注目するポイントなどお互いの違いも楽しみながら打合せを進めることができました。M様のデザインセンスが光る空間が出来上がったのではと思います。
M様
自分で描いたプランやイメージのスケッチに対して、耐震補強の基準値や断熱等級値、コストや工期のエビデンスを提示してくれるので、納得できる判断ができて、打ち合わせがスムーズに進んだと思います。
改修工事①
解体工事
設計補佐:尾崎
解体工事が終わり、工藤さんが構造体をチェックしています。
1階は基礎補強のため床と床下地を撤去しています。床下の配管のために基礎が一部壊れています。基礎補強して頑丈にしていきます。
改修工事②
基礎補強工事
現場監督:町田
工事を担当する町田です。
まず基礎補強のため、耐圧部分と添え基礎部分の鉄筋工事を進めます。既存の基礎はベースのない立上りのみの基礎(無筋)だったので、ベタ基礎(耐圧版と添え基礎)で工事を進めます。コンクリートを打設し、補強基礎が完成しました。
現場監督:町田
既存の建物は羽子板金物や構造金物がほとんどなかったので、補強する構造材(柱や梁)、耐力壁、構造金物を追加しました。
昔の梁は細いので、梁を追加して屋根や2階床の荷重を支えます。補強には木材をきざみ、現況の構造にしっかりと合わせていきます。
改修工事③
断熱工事
現場監督:町田
基礎の内側から断熱します。基礎は厚さ75mmのスタイロ、外壁面は厚さ105mmの高性能グラスウールを施工しました。
2階天井面は厚さ210mmの高性能グラスウールで屋根からの遮熱を実現します。最近の夏はとても暑いので、断熱材をいれることで、エアコンが効きやすくなります。
外壁にも断熱材を入れて防湿シートを施工しました。防湿シートは、壁体内の内部結露を防止し、家の気密性をあげます。
改修工事④
窓工事
現場監督:町田
サッシの取付です。新設でサッシを取り付ける場所と既存窓に内窓をつける箇所があります。新設の窓は断熱性能が高く、ガラスが2重のLow-Eガラスでとても重いです。職人皆で持ち上げ取り付けていきます。
改修工事⑤
木工事
現場監督:町田
フローリングを施工しています。斜め貼りなので綿密な作業となります。
天井ボード張りと階段を施工しました。階段工事は計算しながら寸法を出していきます。手摺と階段下収納が絡んでいるため、とても慎重さが求められる工事です。
改修工事⑥
タイル工事・外階段工事
現場監督:町田
キッチンの横壁にタイルを貼っているところです。裏の緑道から敷地に接続できるように外階段を作りました。
完成
工事完了
耐震と断熱を兼ね備えた改修工事が完了しました。
M様
断熱等級6や高気密、耐震等級3のような極端な性能住宅ではありませんが、コストに合わせたバランスのとれた性能を具体的な実感を伴った説明をいただいて、オプションを取捨選択しながら納得感をもって決められたので、性能的にも安心して生活できる家になりました。
また、断熱改修や耐震改修、雨水流出抑制など国、都、市の助成金や税額控除も並行してアドバイスをもらいつつ、常に総予算を横にらみしながら打合せをしていくことができました。
川に面した1階リビングや子供部屋に面して大きな窓とテラスを作ってつなげて使えるようにしたり、裏の遊歩道に庭から直接出られる階段と駐輪場をつくったりして、外とつながって生活できるようになり、家族でいろいろと手を加えていくのが楽しみな住宅になりました。
総括
建築基準法と補助金の活用など
設計補佐:尾崎
今回の改修は、接道がなく再建築が難しい敷地での工事でした。
また改修方法は、屋根や外壁の外装部分残しながら、木造の耐震改修と断熱改修を行いました。
大きな改修工事ではありましたが、建築確認申請は必要ないケースです。もし屋根や外壁を全て取り除き新しいものに交換する工事がある場合は、建築確認申請が必要となります。接道がないと改修工事は難しいです。
2025年4月より建築基準法が改正され、木造2階建ての改修工事に建築確認申請が必要なケースが出てきました。工事が完了してから取得する新築時検査済証があれば、建築確認申請を行った工事は比較的容易です。もし検査済証がない場合は「既存建築物の現況調査」を行い、改修工事が可能かどうかの判断していきます。
【利用した補助金】
・先進的窓リノベ事業
・⼦育てエコホーム⽀援事業
・既存住宅における省エネ改修促進事業
・市区町村の断熱化工事と耐震化工事の助成
合計しますと、300万円を超える補助額となりました。
竣工写真
快適で健康に暮らせる住まいが完成しました。竣工写真ページもぜひご覧ください。




















